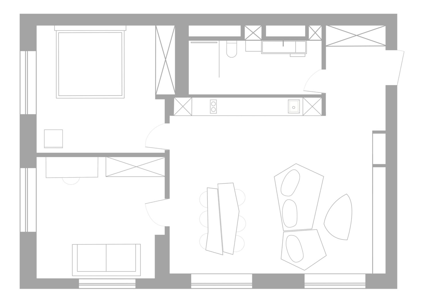
Interior designer Vlad Kudin turned a 70-square-metre apartment in central Minsk into a striking study in contemporary minimalism. The brief from his clients was simple: light-filled and spacious. They gave him complete creative freedom and made decisions fast—pretty much every designer’s dream scenario!Affectionately named Blondie Space, the apartment’s open-plan layout got even more generous when Kudin integrated the balcony into the main living area. This move created room for a guest bedroom and main bedroom while keeping everything feeling light and airy.With the apartment intended only for occasional stays and clients uninterested in luxury brands, Kudin designed nearly all the furniture himself. This included a sofa, coffee table, dining table, metal bed, and a distinctive travertine washbasin that would later be presented at Milan’s Salone del Mobile and receive an award in a local product design competition.“Working with a compact space and low ceilings was not easy, but thanks to a thoughtful layout, colour palette, and material choices, we achieved an impression of air and openness,” says Kudin. His approach was all about restraint: white and light grey tones, matte surfaces everywhere, and no black at all. Against this calm backdrop, bold asymmetrical furniture shapes bring personality without making the space feel cluttered.This Parisian Apartment Renovation Reimagines Art Nouveau for Today.Given carte blanche by his clients, architect Clément Lesnoff-Rocard embarked on a complete metamorphosis of this classical Parisian apartment. Yellowtrace Vlad Kudin Blondie Space Minsk Photo Liza Kulenenok 24 Opt80 Yellowtrace Vlad Kudin Blondie Space Minsk Photo Liza Kulenenok 29 Opt80 Yellowtrace Vlad Kudin Blondie Space Minsk Photo Liza Kulenenok 12 Opt80 Yellowtrace Vlad Kudin Blondie Space Minsk Photo Liza Kulenenok 04 Opt80 Yellowtrace Vlad Kudin Blondie Space Minsk Photo Liza Kulenenok 14 Opt80 Yellowtrace Vlad Kudin Blondie Space Minsk Photo Liza Kulenenok 13 Opt80 Yellowtrace Vlad Kudin Blondie Space Minsk Photo Liza Kulenenok 05 Opt80 Yellowtrace Vlad Kudin Blondie Space Minsk Photo Liza Kulenenok 06 Opt80 Yellowtrace Vlad Kudin Blondie Space Minsk Photo Liza Kulenenok 27 Opt80 Yellowtrace Vlad Kudin Blondie Space Minsk Photo Liza Kulenenok 01 Opt80 Yellowtrace Vlad Kudin Blondie Space Minsk Photo Liza Kulenenok 02 Opt80 Yellowtrace Vlad Kudin Blondie Space Minsk Photo Liza Kulenenok 26 Opt80 Yellowtrace Vlad Kudin Blondie Space Minsk Photo Liza Kulenenok 03 Opt80 Yellowtrace Vlad Kudin Blondie Space Minsk Photo Liza Kulenenok 07 Opt80 Yellowtrace Vlad Kudin Blondie Space Minsk Photo Liza Kulenenok 11 Opt80 Yellowtrace Vlad Kudin Blondie Space Minsk Photo Liza Kulenenok 09 Opt80 Yellowtrace Vlad Kudin Blondie Space Minsk Photo Liza Kulenenok 15 Opt80 Yellowtrace Vlad Kudin Blondie Space Minsk Photo Liza Kulenenok 16 Opt80 Yellowtrace Vlad Kudin Blondie Space Minsk Photo Liza Kulenenok 17 Opt80 Yellowtrace Vlad Kudin Blondie Space Minsk Photo Liza Kulenenok 19 Opt80 Yellowtrace Vlad Kudin Blondie Space Minsk Photo Liza Kulenenok 20 Opt80 Yellowtrace Vlad Kudin Blondie Space Minsk Photo Liza Kulenenok 21 Opt80 Yellowtrace Vlad Kudin Blondie Space Minsk Photo Liza Kulenenok 22 Opt80 Yellowtrace Vlad Kudin Blondie Space Minsk Photo Liza Kulenenok 23 Opt80 Yellowtrace Vlad Kudin Blondie Space Minsk Photo Liza Kulenenok 25 Opt80 Yellowtrace Vlad Kudin Blondie Space Minsk Photo Liza Kulenenok 28 Opt80 Yellowtrace Vlad Kudin Blondie Space Minsk Photo Liza Kulenenok 30 Opt80 Yellowtrace Vlad Kudin Blondie Space Minsk Photo Liza Kulenenok 08 Opt80 Yellowtrace Vlad Kudin Blondie Space Minsk Photo Liza Kulenenok 31 Opt80 Art played a crucial role in defining the apartment’s character. There’s a chair from a contemporary art fair in the bedroom, and artist Lena Gil painted Dinner specifically for this project. Kudin also made several art pieces himself, playing with black steel and stainless steel textures.The clients work with natural stone and initially wanted it throughout, but Kudin pushed back. He used it sparingly—kitchen countertop, dining table, bathroom—which kept things feeling light. The kitchen is stripped back with no upper cabinets and plenty of bench space. In the bathroom, a walk-in shower sits alongside that standout travertine washbasin with its twin pedestals and slot drain.All the storage hides in wall niches finished with the same matte plaster as the walls, so nothing breaks the visual flow. Custom Viennese chairs painted in two colours add a pop of energy.“Perhaps this combination of circumstances—no reliance on brands, tight deadlines, and the necessity to work within constraints—is what helped create such a cohesive and unusual result,” Kudin reflects. “For me, this project became a creative manifesto: proof that the most interesting and daring solutions are often born from constraints.” We couldn’t agree more. This Editorial Placement has been vetted to align with Yellowtrace’s stringent selection criteria. The modest contribution we receive for these placements aids in our ongoing commitment to delivering exceptional quality content. For more information or to submit your project for consideration, head to our contact page.Off-Kilter Minimalism: Vaders Dye Tattoo Studio in Hamburg by Deglan Studios.Artist-architect duo Deglan Studios utilise a calm and bright colour palette alongside a limited material selection to deliver an unobtrusive space with major impact. [Images courtesy of Vlad Kudin. Photography by Liza Kulenenok.] Share the love: Click to share on Facebook (Opens in new window) Facebook Click to share on X (Opens in new window) X Click to share on LinkedIn (Opens in new window) LinkedIn Click to email a link to a friend (Opens in new window) Email Click to share on Pinterest (Opens in new window) Pinterest Leave a Reply Cancel ReplyYour email address will not be published.CommentName* Email* Website Δ