Yellowtrace Extrarradio 1940s Madrid House Renovation Photo German Saiz 01 Opt80

Yellowtrace Extrarradio 1940s Madrid House Renovation Photo German Saiz 03 Opt80

Yellowtrace Extrarradio 1940s Madrid House Renovation Photo German Saiz 04 Opt80

Yellowtrace Extrarradio 1940s Madrid House Renovation Photo German Saiz 02 Opt80

 

In the working-class neighbourhood of Carabanchel, Madrid, architect Antonio Antequera Reviriego of Extrarradio Estudio has transformed a modest 1940s terraced house into a brave domestic experiment. Named TET, this 68-square-metre residence proves that spatial generosity has little to do with actual floor space.

The original dwelling was typical of its era: a ground floor containing living room, kitchen and bathroom, with three cramped bedrooms and a narrow hallway above. A polycarbonate-covered courtyard and dilapidated storage shed completed the picture.

Rather than work around these constraints, the architect took a more radical approach — stripping the house back to its structural skeleton of beams, walls and roof frames.

 

Yellowtrace Extrarradio 1940s Madrid House Renovation Photo German Saiz 05 Opt80

Yellowtrace Extrarradio 1940s Madrid House Renovation Photo German Saiz 08 Opt80

 

Yellowtrace Extrarradio 1940s Madrid House Renovation Photo German Saiz 11 Opt80

 

Yellowtrace Extrarradio 1940s Madrid House Renovation Photo German Saiz 12 Opt80

 

Yellowtrace Extrarradio 1940s Madrid House Renovation Photo German Saiz 09 Opt80

Yellowtrace Extrarradio 1940s Madrid House Renovation Photo German Saiz 10 Opt80

Ex Pu Tet Axo

 

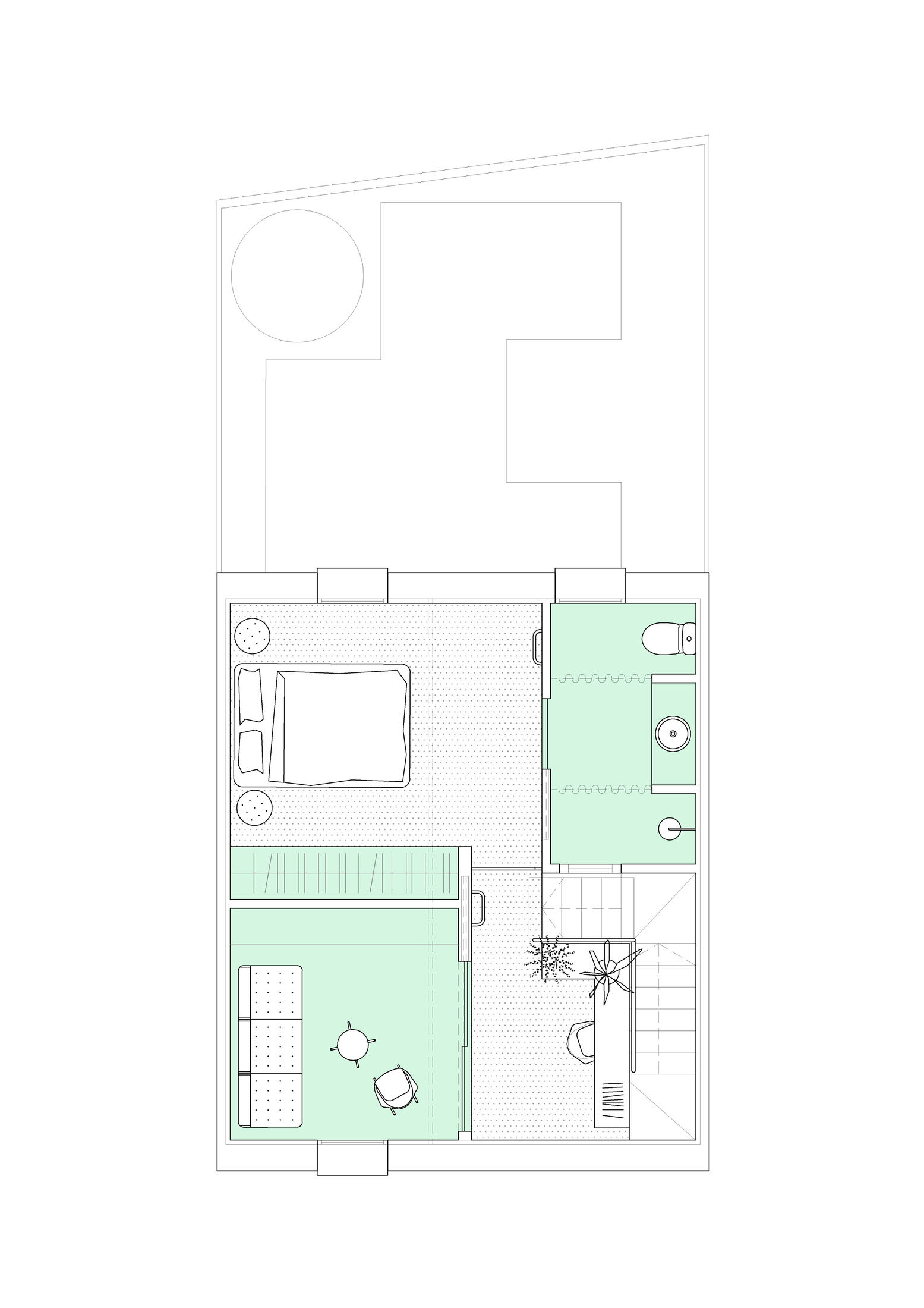
From this blank canvas emerged a design strategy centred on a continuous green zigzag element that traces the ground floor’s perimeter. This sculptural pathway integrates the home’s essential functions: toilet, kitchen, stairs, benches and — in a particularly playful touch — a small outdoor bathtub. Upstairs, two freestanding green volumes house the bathroom and a secondary bedroom, serving as spatial mediators between the master bedroom and study.

The project’s central challenge lay in accommodating a full residential programme within such a compact footprint without sacrificing the sense of openness. Extrarradio Estudio’s solution was deliberate restraint: by ensuring that none of the functional volumes reach the ceiling, the interior reads as a series of interconnected zones rather than isolated rooms. The resulting hybrid spatial condition feels open yet defined, flexible yet purposeful.

 

Yellowtrace Extrarradio 1940s Madrid House Renovation Photo German Saiz 13 Opt80

 

Yellowtrace Extrarradio 1940s Madrid House Renovation Photo German Saiz 14 Opt80

 

Yellowtrace Extrarradio 1940s Madrid House Renovation Photo German Saiz 16 Opt80

Yellowtrace Extrarradio 1940s Madrid House Renovation Photo German Saiz 15 Opt80

Colour operates as both a conceptual framework and a wayfinding device here. The vivid green of the zigzag and functional boxes establishes a clear visual language against the neutral white base, animating what might otherwise feel like an austere exercise in reduction.

TET reflects its owner’s lifestyle — casual, creative and oriented toward social gatherings. It’s a house designed not merely for living, but for hosting dinners and parties. In stripping away the superfluous, Extrarradio Estudio has created a space where less genuinely delivers more.

 

 

 


[Images courtesy of Extrarradio Estudio. Photography by Germán Saiz.]

 

Leave a Reply

Your email address will not be published.